OBS! Om två personer söker en lägenhet tillsammans, måste både huvudsökande och medsökande ha möjlighet att betala varsin månadshyran efter skatt.
En nyrenoverad tvårumslägenhet finns att söka nu!
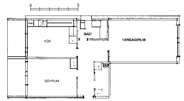
Lägenheten är belägen på första våningen i ett trevåningshus.
Lägenheten kommer att genomgå en större renovering innan inflyttning som avser följande:
--> Nytt golv & vita fotlister i alla rum
--> Hela lägenheten målas om i vitt + ny väv
--> Eluttag och strömbrytare byts ut i hela lgh
--> Badrums renovering
--> Köks förnyelse medium & garderobs förnyelse
--> köksfläkt installeras, ny kyl/frys och ny spis med keramikhäll.
--> Martin vit innerdörrar installeras
Info om Lägenheten
Hall
Färg väggar: Vit
Golv: Vinylgolv (Urban Concrete Dark)
Förvaringsmöjligheter: Ja, Garderob
Kök
Utrustning: Spis med keramikhäll, Kyl/frys kombi, Köksfläkt
Färg på köksinredning: Vit
Färg väggar: Vit
Golv: Vinylgolv (Urban Concrete Dark)
Plats för matbord: Ja
OBS: Möjlighet till installation av diskmaskin finns som tillval om så önskas
Vardagsrum
Färg väggar: Vit
Golv: Parkett
Sovrum 1
Färg väggar: Vit
Golv: Parkett
Förvaringsmöjligheter: Nej
Badrum
Utrustning: Dusch, Handfat, Wc, Badrumsskåp, Handuksstork
Väggar: Hel kaklat
Golv: Klinkergolv
OBS: Möjlighet för installering av tvättmaskin finns ej!
Klädkammare
Väggar: Vit
Golv: Vinylgolv (Urban Concrete Dark)
Övrigt
Förråd: Finns
I hyran ingår: Kabel-TV, värme, varmvatten
OBS! Möjlighet för tvättmaskin finns EJ!
Denna lägenhet omfattas av underhålls hyra, läs mer om hur detta fungerar och vad det innebär på vår hemsida https://www.mkbfastighet.se/kund/din-bostad/renovering-och-underhall/