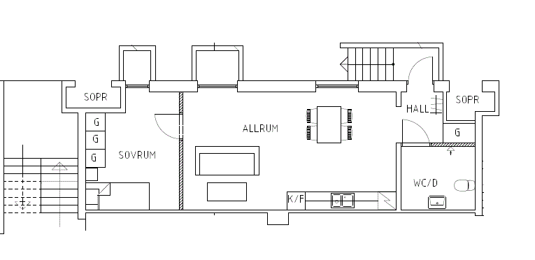
Välkomna till denna 2:a om 49 kvadratmeter. Lägenheten är en källarlägenhet med bra planlösning. Sovrummet för sig själv medan vardagsrum och kök är i ett rum. Lägenheten hyrs ut i befintligt skick.
Hall:
Färg väggar: Vita
Golv: Klinkergolv
Förvaring: Klädkammare
Kök:
Utrustning: Spis med keramikhäll, fläkt och kyl/frys & diskmaskin
Färg på köksinredning: Vit
Färg väggar: Vit
Golv: klinker
Vardagsrum
Färg väggar: Ljusa
Golv: Klinkergolv
sovrum
Färg väggar: Ljusa
Golv: Klinkergolv
Badrum
Utrustning: Dusch, Wcstol,
Väggar: helkaklat
Golv: Klinker
Övrigt:
Säkerhetsdörr: Ja
Förråd: Finns källare
Balkong: Finns ej
Denna lägenhet omfattas av underhållshyra, läs mer om hur detta fungerar och vad det innebär på vår hemsida. https://www.mkbfastighet.se/kund/din-bostad/renovering-och-underhall/
Om två personer söker en lägenhet tillsammans, måste både huvudsökande och medsökande var och en klara en (1,0) gång månadshyran efter skatt.
OBS, det kommer ske ett kommande tappvatten byte där vi installerar individuell mätning av varmvatten