OBS! INGEN VISNING.
Du behöver ta ställning till om du är intresserad baserat på planritningen samt beskrivningen här i annonsen.
Hej och välkomna till gröna Augustenborg
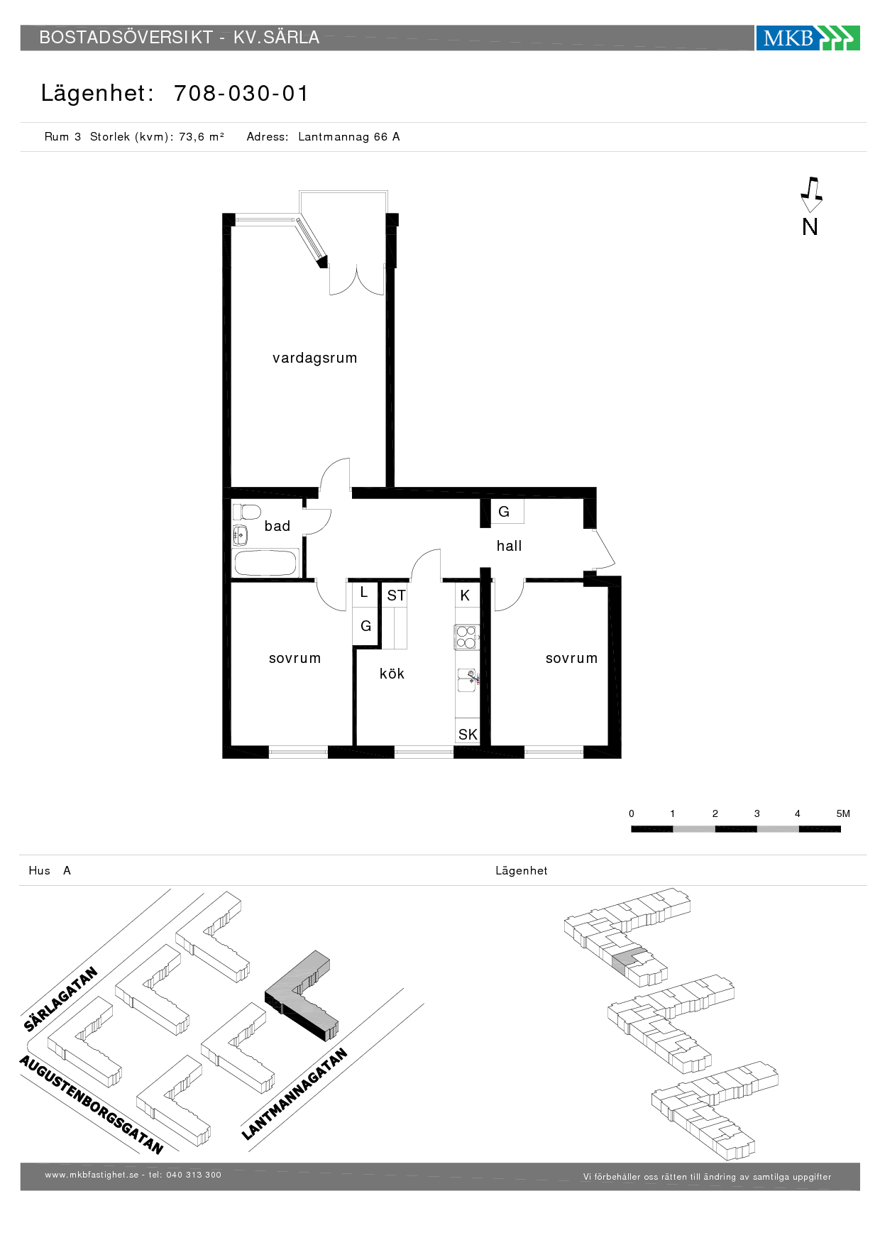
Nu har du chansen att söka en mysig och fräsch 3:a med balkong!
Lägenheten är belägen högst upp på våning 3 i ett 3-våningshus utan hiss och har en praktisk och trivsam planlösning.
Badrummet är nyrenoverat efter genomfört stambyte i fastigheten, utfört under 2026.
Under stambytesprojektet uppdaterades även ventilationen och fönsterna.
Följande åtgärder har/ska göras i lägenheten:
- Badrummet har precis blivit nyrenoverat efter att stambyte är klart
- Nya fönster samt ny balkongdörr har nyligen installerats
- Målning av alla rum
- Alla luckor och stommar i kök och garderober målas
- Vita innerdörrar installeras
- Nytt parkettgolv läggs i vardagsrum och sovrum 2
- Ny vinylmatta läggs i kök.
- Ny spis med keramikhäll installeras
- Ny köksfläkt installeras
Preliminär tidsplan är färdigställande före inflyttning, men arbete kan förekomma efter inflyttning.
Viktigt att veta:
Det finns ingen möjlighet att installera diskmaskin eller tvättmaskin i lägenheten.
Mer information om lägenheten:
Hall
Färg väggar: Vita
Golv: Vinylmatta
Förvaringsmöjligheter: Garderober
Kök
Utrustning: Spis med keramikhäll, kyl/frys, fläkt
Färg på köksinredning: Vit
Färg väggar: Vita
Golv: Vinylmatta
Plats för matbord:Ja
Vardagsrum
Färg väggar: Vita
Golv: Parkett
Sovrum 1
Färg väggar: Vita
Golv: Parkett
Sovrum 2
Färg väggar: Vita
Golv: Parkett
Badrum
Utrustning: Tvättställ, badrumsspegel, dusch
Väggar: Kakel
Golv:Klinkers
Övrigt
Förråd: Ja, i källare
Internet: MKB Net
Parkering: Finns att hyra i separat kö
Tvätt: Ja, i källare
Denna lägenhet omfattas av underhållshyra, läs mer om hur detta fungerar och vad det innebär på vår hemsida https://www.mkbfastighet.se/kund/din-bostad/renovering-och-underhall/
Inflyttning
Det datum som presenteras i Ledig fr.o.m. är det datum som vi skriver kontrakt från.
OBS! Nya riktlinjer gällande internflytt inom MKB. Från 1/1–2024 är uppsägningstiden tre hela kalendermånader.
Om två personer söker en lägenhet tillsammans, måste både huvudsökande och medsökande var och en klara en (1,0) gång månadshyran efter skatt.