Unikt boende med havet inpå knuten!
Sjöscouten är ett rökfritt boende och ligger ända nere vid den härliga kajpromenaden i den nya delen av Limhamn. Fastigheten har två hus på åtta respektive sex våningar och 74 lägenheter i olika storlekar samt tio radhus i två plan. De flesta har uteplats eller balkong vissa med en fantastisk havsutsikt.
Nära Sjöscouten finns förskola, skola, vårdcentral, apotek, parkering, mataffär och café.
I Sjöscouten är det rökfritt både inne och ute. I lägenheterna, på balkonger och uteplatser samt även i de gemensamma utrymmena som trapphus, cykelförråd, miljöhus och utemiljön kring fastigheten. Den som önskar bo här tecknar avtal om att hålla fastigheten rökfri och ansvarar också för att gäster och andra besökare är rökfria under sin vistelse i huset. Rökförbudet gäller all form av rökning.
Interiör
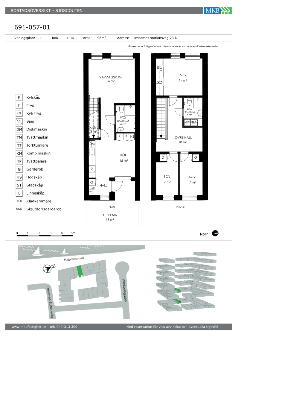
Hall och vardagsrum
Vägg: Vitmålad
Golv: Ekparkett
Hall övrigt: Garderob med dörr/skjutdörrsgarderober, hatthylla
Sovrum
Vägg: Vitmålad
Golv: Ekparkett
Övrigt: Garderober
Kök
Vägg: Vitt kakel ovanför diskbänk
Golv: Ekparkett
Övrigt: Köksinredning Marbodal Arkitekt plus lingrön(NCS S2005-G10Y), vit laminatbänkskiva, diskmaskin, spis med induktionshäll. Inbyggd micro.
Badrum
Vägg: Helkaklad vit
Golv: Mörkgrå klinker
Övrigt: Tvättmaskin och torktumlare med vit laminatbänskskiva och skåp ovanför eller en kombinerad tvättmaskin/torktumlare. Duschvägg i glas. Handdukstork.
Bra att veta
Bilpool i tio år.
Förråd finns.
Hissar och direktingång från markplan.
Persienner finns.
MKB har ett omfattande trygghetsarbete.
Detta ingår i hyran
Värme
Kallvatten
Basutbud med TV- kanaler
Kostnader utöver hyran
El: Du tecknar avtal med elleverantör. Du betalar både den fasta avgiften och för din egen förbrukning.
Varmvatten: Individuell mätning och debitering av varmvattenförbrukning för att spara vatten och värmeenergi. Du betalar för din egen förbrukning och den kommer att synas på din hyresavi.
Internet: Fiber från MKB Net finns i din lägenhet. Du har många olika leverantörer och hastigheter att välja bland.
Den presenterade hyran är enligt 2026 års hyresnivå.
Om två personer söker en lägenhet tillsammans, måste både huvudsökande och medsökande var och en klara en (1,0) gång månadshyran efter skatt.