OBS! Ingen fysisk visning kommer att hållas. Du behöver ta beslut utifrån information i annons.
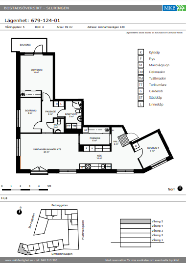
Entré/Hall
Innanför lägenhetsdörren ligger grått klinker på golv som sedan övergår i ekparkett. Vitmålade väggar. Förvaringslösning framgår av planritningen. Hatthylla finns i alla lägenheter.
Badrum
Mattsvart klinker på golv och vitt kakel på vägg. Handfat, handdukstork, wc och dusch med duschdörrar. Tvättmaskin och torktumlare, bänkskiva i laminat och överskåp.
Kök/vardagsrum
Ekparkett på golv och vitmålade väggar. VITVAROR: Spis/ugn med induktionshäll, spiskåpa, vit kyl och frys, diskmaskin och förberett för mikrovågsugn. KÖKSINREDNING: Marbodal Aspekt Vit (vita släta skåpluckor). Marbodal handtag (Tråd rostfri). Bänkskiva och stänkskydd av grå laminat med nedsänkt diskho.
Sovrum
Ekparkett och vitmålade väggar. Förvaringslösning framgår av planritningen.
Wc
Mattsvart klinker på golv och vitt kakel på vägg. Handfat och wc.
Övrigt:
CYKELFÖRVARING/CYKELPARKERING Finns både på gården och i källaren.
PARKERING/ /BILPOOL 47 platser i garage samt 46 garageplatser i Multihuset.
FÖRRÅD Finns i källaren
Detta ingår i hyran:
Värme
Kallvatten
Basutbud med TV kanaler
Kostnader utöver hyran:
El: Avtal tecknas med vår elleverantör. Du betalar både den fasta avgiften och för din egen förbrukning. Du kan byta leverantör när du så önskar.
Varmvatten:
Individuell mätning och debitering av varmvattenförbrukning för att spara vatten och värmeenergi. Du betalar för din egen förbrukning och den kommer att synas på din hyresavi.
Internet:
Fiber från MKB Net finns i din lägenhet. Du har många olika leverantörer och hastigheter att välja bland.
Den presenterade hyran är enligt 2026 års hyresnivå.
Om två personer söker en lägenhet tillsammans, måste både huvudsökande och medsökande var och en klara en (1,0) gång månadshyran efter skatt.