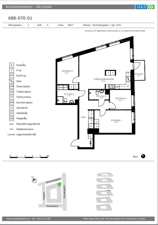
Hall:
Vägg: Ljust målad
Golv: Ekparkett med mörkgrå klinker vid entré.
Övrigt: Hatthylla
Kök:
Vägg: Ljust målad. Vitt blankt kakel ovanför diskbänk.
Golv: Ekparkett
Vit köksinredning och grå bänkskiva av laminat.
Övrigt: Diskmaskin, spis med induktionshäll, förberett utrymme för micro, kyl och frys separat eller kombinerad kyl/frys.
Vardagsrum:
Vägg: Ljust målad
Golv: Ekparkett
Sovrum 1:
Vägg Ljust målad
Golv: Ekparkett
Garderob
Sovrum 2:
Vägg Ljust målad
Golv: Ekparkett
Sovrum 3:
Vägg Ljust målad
Golv: Ekparkett
Garderob
Badrum:
Vägg: Helkaklad vit
Golv: Grå klinker
Tvättmaskin och torktumlare och en del lägenheter har kombimaskin.
Spegelskåp ovanför tvättställ
Duschväggar i glas. I lägenheter med ett extra badrum finns duschstång.
Handdukstork
Avvikelser i inredningen kan förekomma
Detta ingår i hyran:
Värme
Kallvatten
Basutbud med TV kanaler
Kostnader utöver hyran:
El: Avtal tecknas med vår elleverantör. Du betalar både den fasta avgiften och för din egen förbrukning. Du kan byta leverantör när du så önskar.
Varmvatten: Individuell mätning och debitering av varmvattenförbrukning för att spara vatten och värmeenergi. Du betalar för din egen förbrukning och den kommer att synas på din hyresavi.
Internet: Fiber från MKB Net finns i din lägenhet. Du har många olika leverantörer och hastigheter att välja bland.
Om två personer söker en lägenhet tillsammans, måste både huvudsökande och medsökande var och en klara en (1,0) gång månadshyran efter skatt.