Varmt välkommen till Skjutskontoret!
Nu kan du söka denna nybyggda och moderna lägenhet i ett helt nytt bostadskvarter i eftertraktade Kirseberg.
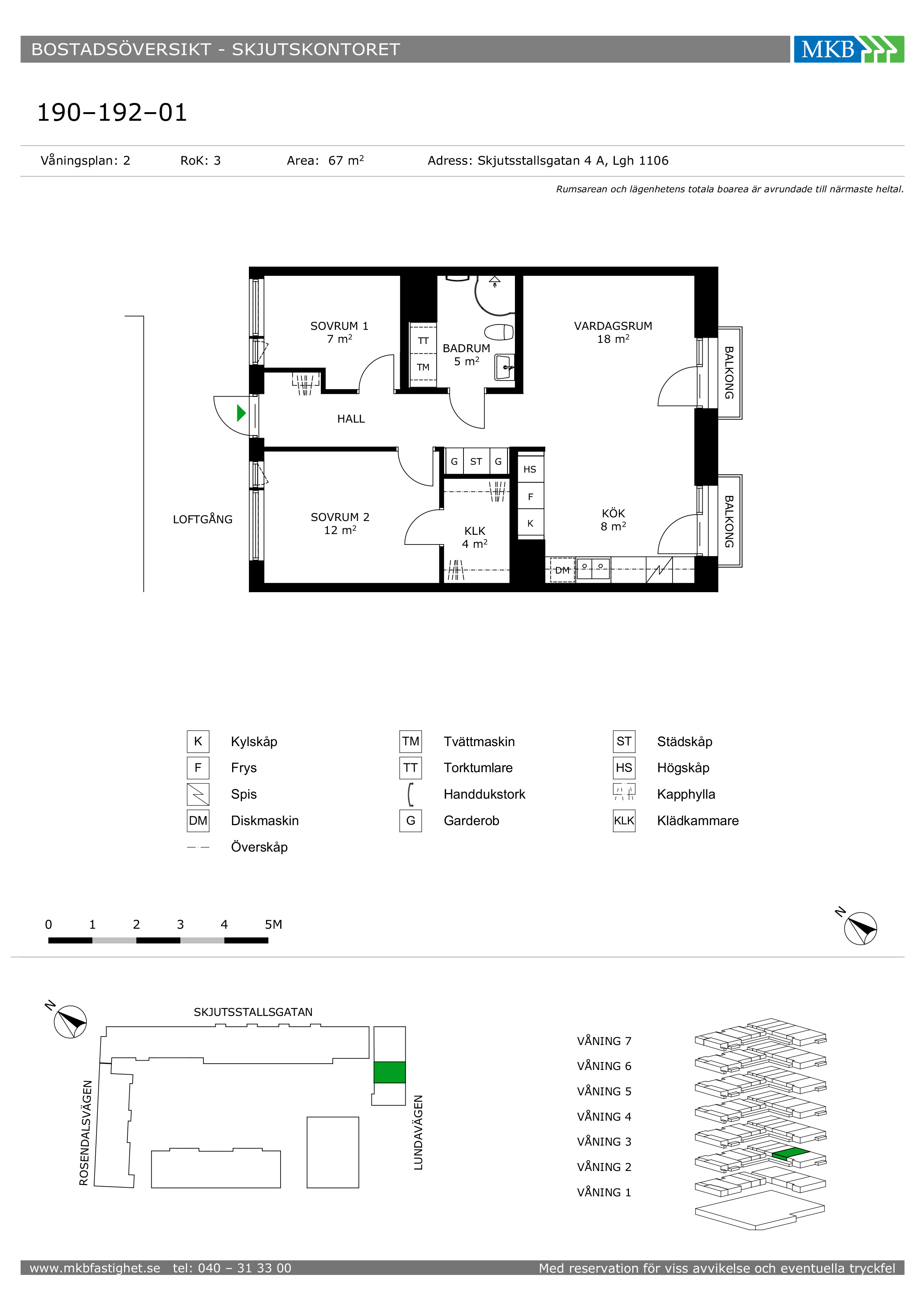
Om fastigheten
Skjutskontoret består av tre hus med totalt 262 nyproducerade lägenheter, ett levande torg och tre affärslokaler på bottenplan.
Här erbjuds moderna och välplanerade lägenheter om 1-4 rum och kök, tillsammans med bekvämligheter som två övernattningslägenheter och flera smarta mobilitetslösningar där du kan låna cykel, lådcykel, cykelsläp med mera.
Det stora cykelgaraget har egen nerfart enbart för cyklar och kompletteras av en praktisk cykelverkstad och behöver du bil finns både bilpool och parkeringsplatser att tillgå. Allt är genomtänkt och skapat för att ge dig ett bekvämt, hållbart och flexibelt boende där vardagen blir både enklare och lite bättre.
Visualiserade rundvandringar
Gå in i en 1 ROK på 30 kvm:
Klicka här
Gå in i en 1 ROK på 35 kvm:
Klicka här
Gå in i en 2 ROK på55 kvm:
Klicka här
Gå in i en 3 ROK på 70 kvm:
Klicka här
Se en översikt över hela huset:
Klicka här
Lägenheten
Hall
Vägg: Målad vit
Golv: Klinker innanför dörr. Ekparkett.
Övrigt: Hatthylla
Vardagsrum
Vägg: Målad vit
Golv: Ekparkett
Kök
Golv: Ekparkett
Vägg: Målad vit
Vit köksinredning
Vitt kakel ovan diskbänk
Kyl och frys samt induktionsspis och ugn
Diskmaskin
Sovrum
Vägg: Målad vit
Golv: Ekparkett
Övrigt: Garderober
Badrum
Vägg: Vitkaklad
Golv: Grå klinker
Handdukstork
Dusch med duschväggar i glas.
Tvättmaskin och torktumlare alternativt kombimaskin
Detta ingår i hyran
Värme
Kallvatten
TV-tjänsten Sappa med 20 digitala TV-kanaler. Du får också tillgång till playtjänsten Sappa Play.
Fast el-avgift
Kostnader utöver hyran
El: MKB tecknar ett gemensamt elnätsabonnemang. Den fasta avgiften är inräknad i hyran som presenteras, den rörliga delen betalar du efter din förbrukning. Varje lägenhet får en egen mätare för att kunna fördela kostnaderna individuellt.
Varmvatten: Individuell mätning och debitering av varmvattenförbrukning för att spara vatten och värmeenergi. Du betalar för din förbrukning och den kommer att synas på din hyresavi.
Internet: Fiber från MKB Net finns i din lägenhet. Du har många olika leverantörer och hastigheter att välja bland. Du väljer själv och tecknar ett avtal med den leverantör som passar dina behov.
Observera
Byggarbeten på fastigheten kommer att pågå fram till våren 2027.
Arbeten i det omkringliggande området kan förekomma även efter detta.
Framkomligheten på gatan utanför fastigheten kommer periodvis att vara begränsad.
Hyran för lägenheten är enligt 2026 års hyresnivå, hyreshöjning kommer ske innan inflyttning enligt 2027 års hyresnivå. I nuläget vet vi inte vad den nya hyran blir då förhandling om hyreshöjningen är inte gjord när annonsen publicerades.
Övrigt
Två övernattningslägenheter till gäster
Rökfritt boende
Externt förråd
Säkerhetsdörr
Cykelförråd och cykelverkstad i källaren, egen nerfart för cyklar
Laddskåp för cykelbatteri
Tillgång till bil och cykelpool
Parkering i garage under fastigheten
Gård med grill, lusthus, sittytor och lekplats